• Contact us for
    a custom quote!
  • Edmonton 780.432.7700 4421 Roper Rd NW, Edmonton, AB
    Calgary 403.879.6003 104-10770 25 St NE, Calgary, AB
Fancy Doors & Mouldings Ltd. Fancy Doors & Mouldings Ltd.
  • Home
  • Doors
    • Exterior Doors
    • Interior Doors
    • Commercial Solutions
    • Shaker Style Doors
  • Windows
  • Mouldings
  • Hardware
  • Blog
  • Contact
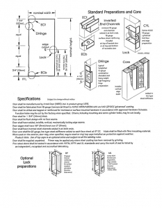
Home>Frames>Commercial Frames>Welded

Welded

WeldedFD+M2015-06-24T12:45:10+00:00

  • Home
  • Sales
  • Products
    • Commercial Doors
    • Commercial Frames
    • Interior Doors
    • Exterior Doors
    • Hardware
    • Mouldings
    • Blog
  • Contact
Fancy Doors & Mouldings Ltd. site logo
  • Edmonton 780.432.7700 4421 Roper Rd NW,
    Edmonton, AB
    Calgary 403.879.6003 104-10770 25 St NE,
    Calgary, AB
  • sale@fancywindow.com
Site Map | Copyright © 2015 - 2025. Fancy Doors & Mouldings Ltd. | All Rights Reserved | Web Design by web3.ca